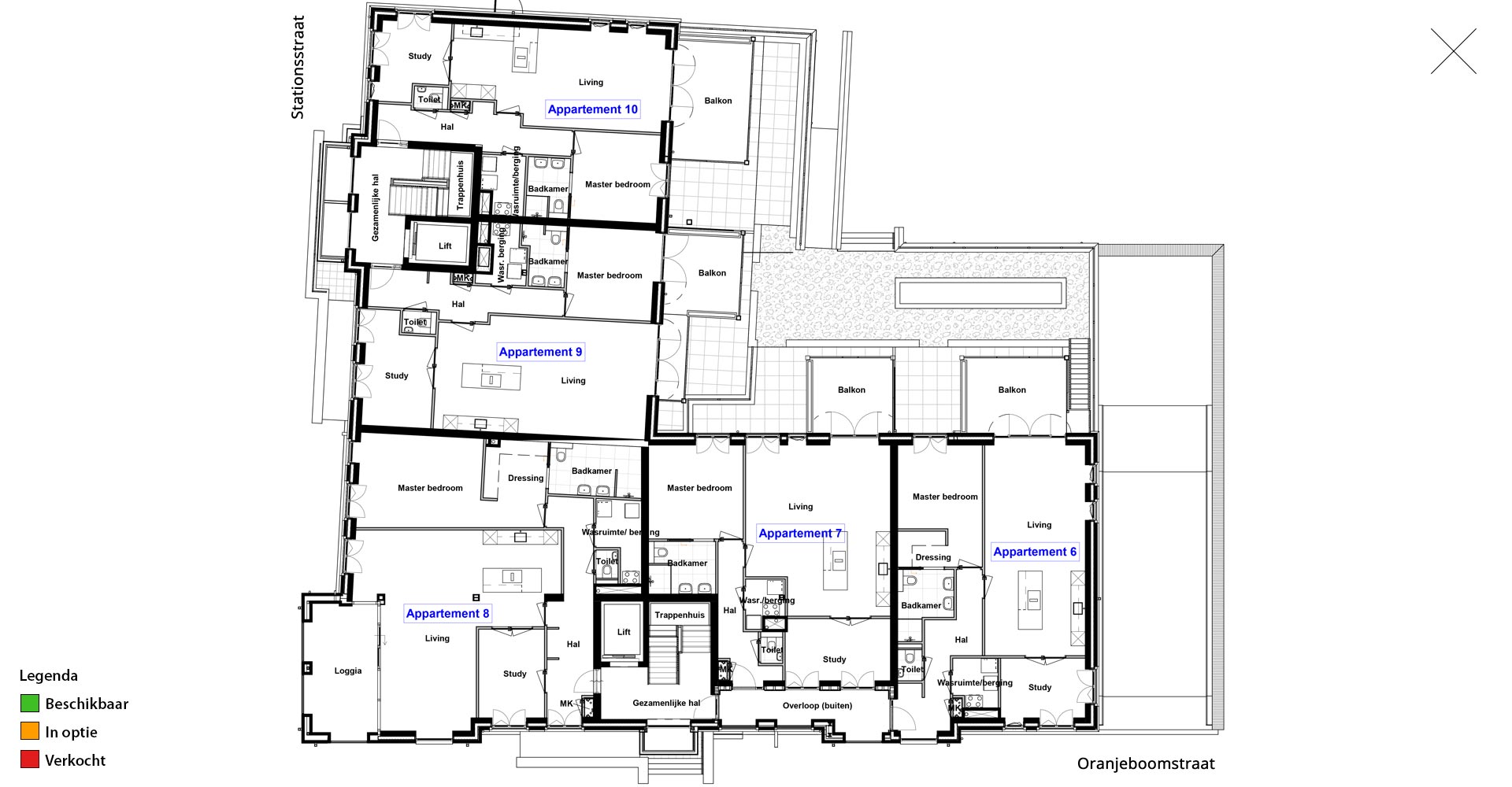
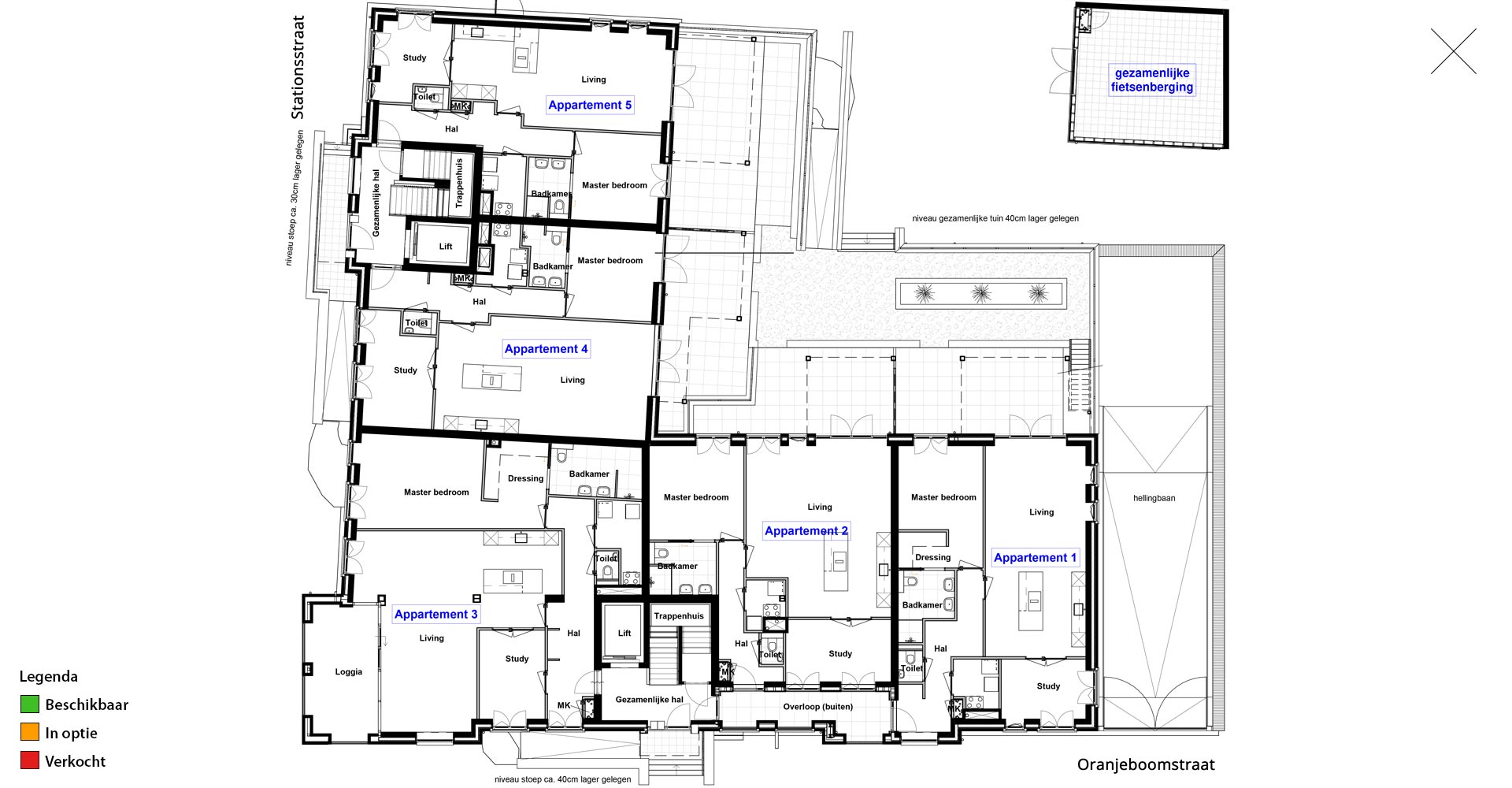
Interactieve kaart
Kies een verdieping
Stallings garage
Kies een appartement
Kies een appartement
Kies een appartement
(Plattegrond appartement 3 is gewijzigd, klik door)
Via de interactieve kaart leest u meer informatie over een specifiek appartement of penthouse:
- Klik in bovenstaande impressie op een verdieping
- Klik op een appartement/ penthouse
- Ga terug naar de kaart door pijltje linksboven in uw scherm







